Sie befinden sich hier:
  • In Planung
  • Im Bau
  • In Vermietung
  • Fertiggestellt

Taun Eikboom

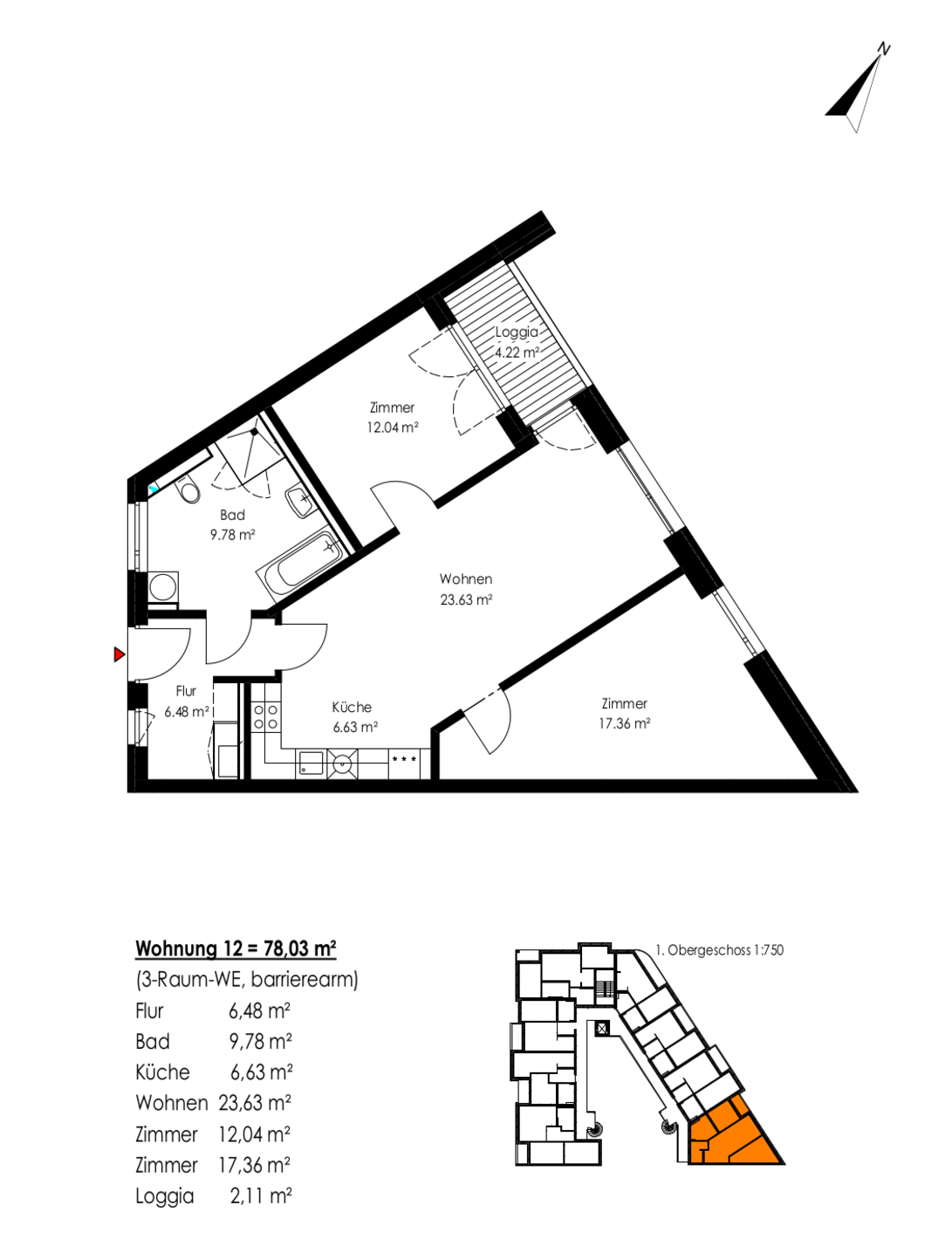
Unter der Adresse Mittelweg 1 ist ein attraktives Wohnobjekt mit hochwertiger Ausstattung mitten im Zentrum der Stadt Ribnitz-Damgarten entstanden. Es wurden 23 moderne, teils barrierefreie Mietwohnungen geschaffen. Dank energetischer Optimierung wurde ein zukunftsweisendes Energieeffizienzhaus nach KfW 55 EE Standard errichtet, welches seinen Bewohnern in Zwei- bis Vier-Zimmer-Wohnungen (50 bis 126m²) ein neues Zuhause bietet.

Alle Wohnungen sind mit einer ebenerdigen Dusche oder einer Badewanne sowie einem Waschmaschinenstellplatz ausgestattet. Sie verfügen entweder über einen Balkon, eine Loggia oder eine Dachterrasse. Über einen Aufzug sind alle Etagen bequem zugänglich und in der Tiefgarage bietet ein Fahrradabstellraum ausreichend Möglichkeit zur Unterbringung von Fahrrädern.

Moderner, mehrstöckiger Neubau mit gelblicher Fassade und Balkonen, umgeben von Straßen mit Fußgängern und parkenden Autos im Stadtzentrum von Ribnitz-Damgarten.

Diese Wohnungen bieten wir im Preisniveau ab 12,00 Euro/m² netto kalt an. Zusätzlich fallen Nebenkosten in Höhe von 3,50/m² an. Optional kann ein PKW-Stellplatz in der Tiefgarage mit dazu gemietet werden, wahlweise auch mit E-Ladestation.

Wohnungsgrößen

2-Raum-Wohnungen 50,83 – 67,24 m²
3-Raum-Wohnungen 73,03 – 93,06 m²
4-Raum-Wohnung 126,18 m²

Freie Wohnungen finden Sie auf unserer Homepage im Bereich Vermietung.